2021년 9월 말경 Key Seg를 제외한 Deck 가설이 완료 후 현재까지 Deck 간 용접이 진행되고 있으며 현재 Deck 용접은 거의 완료되었습니다. 11월 말에는 Key Seg 설치가 가능할 것으로 생각됩니다.

그동안 F/C 및 L/G를 이용한 Deck Segment 가설관련 포스트만 올렸었는데 오늘은 차낙칼레 교량의 전체 가설 계획에 대해서 간단히 정리하려고 합니다(사실 이걸 제일 먼저 올렸어야 하는데 싶습니다.)
차낙칼레 교량이 Deck는 24m 길이의 Segment 153개로 계획되었으며, 공기단축을 위해 실제로는 24m Segment 2개를 이어 붙인 48m Mega Block 66개와 24m Single Block 21개로 제작되었습니다. 각 측경간 5개 및 주탑 구간 3개 Segment는 F/C(Floating Crane)으로, 나머지 Segment는 L/G(Lifting Gantry)로 인양후 가설되었습니다.
데크 인양 순서는 중앙경간은 중앙부터 양 주탑방향으로, 측경간은 부탑부터 주탑 방향으로 가설하며, 중앙경간/측경간의 균형을 맞추는 것을 기본으로 하여 계획되었습니다. 가설 단계별 해석을 통해 Deck 간 Temporary Joint 등의 안전성을 확인하였고, 가설 초기에는 Tie Down Cable에 Slacking이 발생하지 않도록 시공단계를 계획하였습니다. 4개의 Tie Down은 Deck 가설 단계에 따라 3번에 나누어 시공하였습니다.
전체적인 Deck의 가설 순서는 아래 그림과 같습니다. 데크 가설이 진행됨에 따라 교량의 형상이 최종 형상으로 변화하게 됩니다. 아래 그림은 초기 해석결과로 실제로는 현장 상황에 맞추어 조금 변경되었습니다.

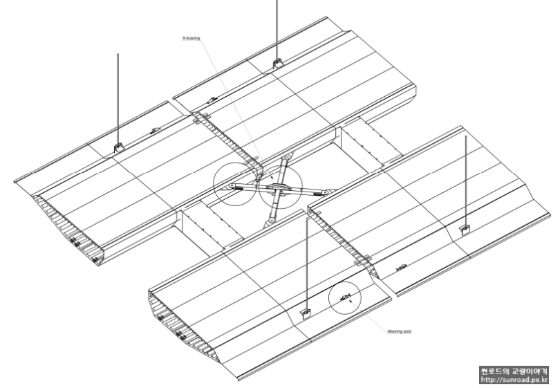
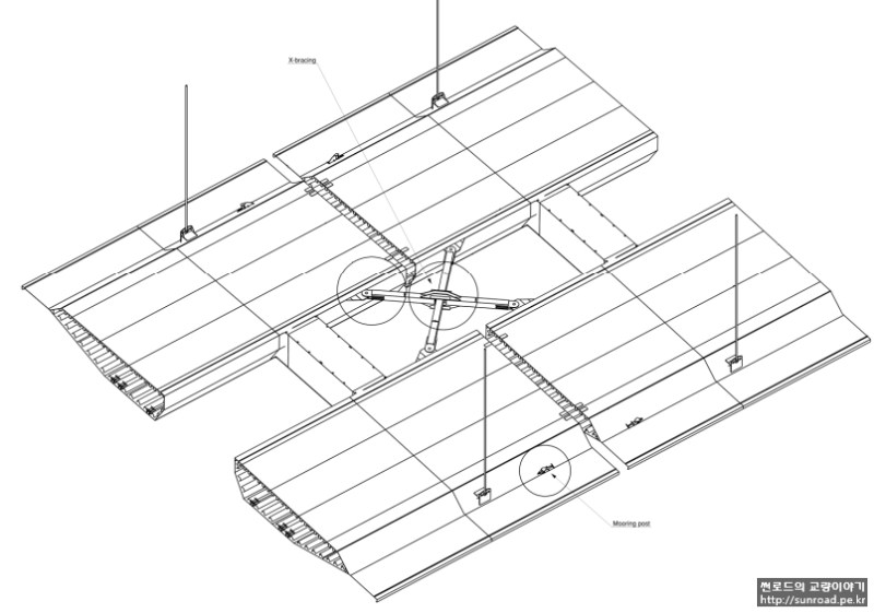
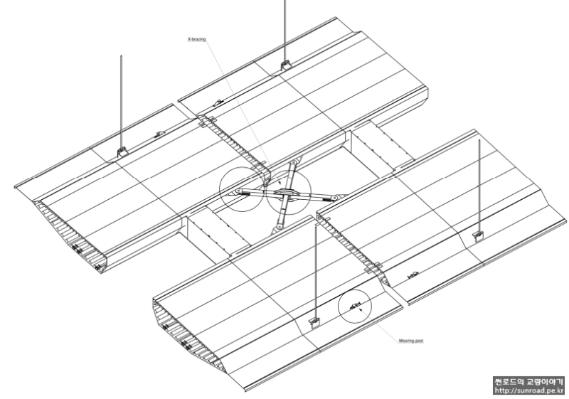
Deck 가설중 Temprary Joint의 풍하중 등에 의한 단면력 감소를 위해 측경간 각 1개소, 중앙경간 4개소, 총 6개소에 Realse Joint를 설치하였습니다. Realse Joint에는 Air Gap에 X-bracing을 설치하여 횡방향 및 연직방향의 회전을 Release 하였으며, Release Joint에서 Deck의 회전 거동 시 Deck가 서로 부딪히지 않도록 450~925mm의 Gap을 주었습니다.



Release Joint는 일반구간 Deck 용접이 완료 후 T2, T3, T1의 순서로 X-bracking 핀 제거후 용접을 실시합니다.
타워에 인접한 Deck No.2의 경우, 주탑 하단의 Working Platform과의 간섭으로 수직으로 인양이 불가능하여 아래 그림과 같이 윈치를 이용한 경사 인양 후 설치되었습니다. 키 세그가 연결되는 구간은 작업자 및 차량 이동을 위한 Overpass Bridge가 설치되었습니다.




Key Segment, Release Joint 구간 그리고 측경간 Temporary 행어 구간 Deck 연결 시 Deck의 조정이 필요한데, 아래와 같이 Destressing System과 Temporary Hagner의 Jack을 이용하여 Deck 조정을 실시합니다.


주탑 구간 3개 Segment로 구성된 Key Segment는 F/C를 이용하여 주탑 Working platform 위에 거치 후 용접을 실시합니다. 모든 데크의 용접 완료 후 L/G를 이용 설치하여 Deck의 최종 폐합이 마무리됩니다.


댓글